(/)
View all photos (5)

Retail Shop in Derby For Sale

£750,000

Property Address: Babington Lane, Derby, DE1 1TA View on map

Property Details

  • Type: Retail Shop
  • Bedrooms: 0
  • Bathrooms: 1
  • Listing Type: For Sale

Description

FOR SALE – COMMERCIAL PROPERTY
Prestigious Freehold Four-Storey Building – 16,264 sq. ft.
Derby City Centre – Cathedral Quarter / St. Peters Quarter

Location
The property is prominently situated on Sadler Gate and Babington Lane, in the heart of Derby City Centre within the Cathedral Quarter and St. Peters Quarter. The surrounding area benefits from strong footfall, with nearby occupiers including retailers, apartments, the post office, and public houses such as The Babington Arms. The Intu Shopping Centre is within walking distance, providing additional amenities and parking.

Excellent transport links are available:

A38 – 3 miles (approx. 8 minutes’ drive)

Junction 25 of the M1 – 8 miles (approx. 12 minutes’ drive)

Description
A substantial and impressive four-storey building, extending to approximately 16,264 sq. ft. (1,511 sqm) including basement and sub-basement areas. The property retains many character features from its original use as a Grand Theatre and Dance Hall, and has subsequently been utilised as nightclubs and most recently as an Adult Mini-Golf Bar and Restaurant.

The property is currently vacant and offers considerable flexibility for a variety of commercial uses, subject to the necessary consents.

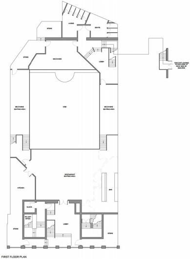
Accommodation
The accommodation is arranged over basement, sub-basement, ground, first and second floors, and briefly comprises:

Bar / lounge area
Dining area
Fully fitted commercial kitchen
Fully fitted cellar
Male and female WC facilities
Staff rooms
Manager’s office
Additional function / bar / storage areas (upper floors)

Approximate Floor Areas:
Sub-basement: 150 sqm / 1,614 sq. ft.
Basement: 145 sqm / 1,565 sq. ft.
Ground: 761 sqm / 8,186 sq. ft.
First: 436 sqm / 4,696 sq. ft.
Second: 19 sqm / 203 sq. ft.
Total: 1,511 sqm / 16,264 sq. ft.

Tenure
Freehold.

Business Rates
From enquiries of the VOA website, we understand the property is currently assessed as follows:
Restaurant and Premises – RV £91,000.

Key Features

Prestigious heritage building in Derby City Centre

Prominent location with strong pedestrian footfall

Fully fitted restaurant/bar with residential flat

Suitable for change of use (STP)

Rare freehold opportunity within Cathedral Quarter

Viewing
Strictly by prior appointment with the sole agents.

Tenure: Freehold

Documents & Features

Brochures:
Floor Plans:
Floor Plan Floor Plan
  • Tenure: Freehold

Estate Agent Contact Details

Agency: Lancashire Properties

Contact: 01614250207

Website: https://www.lancashire-properties.co.uk

Company

Support

Legal

Estate Agents