(/)
View all photos (29)

4 Bed Semi Detached in Heaton Moor SK4 For Sale

£635,000

Property Address: Heaton Road, Heaton Moor, Stockport, SK4 4JH View on map

Property Details

  • Type: Residential / Semi Detached
  • Listing Type: For Sale

Description

Property Description
Heaton Road, Heaton Moor SK4 4JH

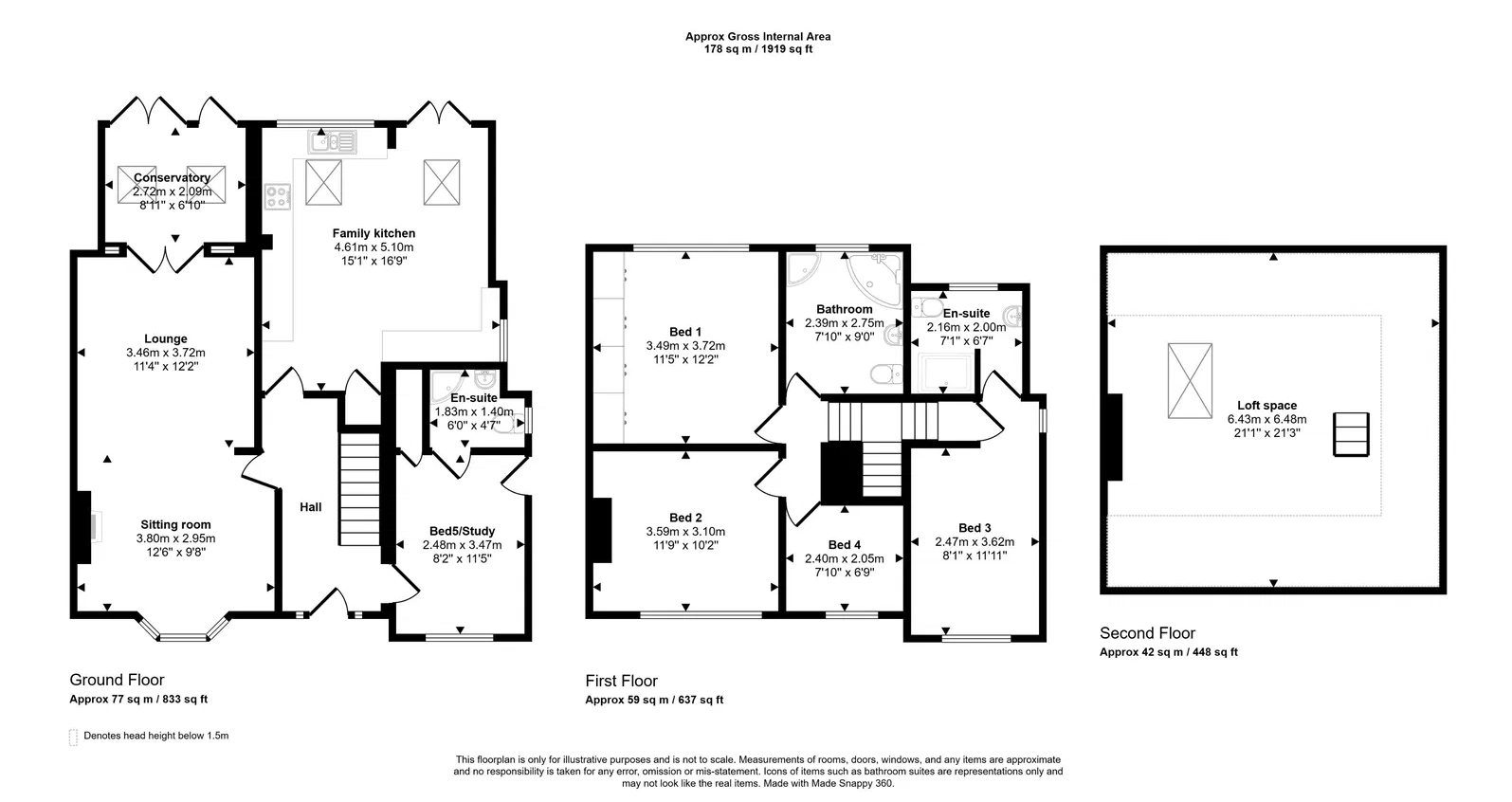
A stunning four bedroom semi detached family home boasting substantially extended living accommodation which has been continually improved over the years by our vendor. The property occupies a very impressive plot and a most noteworthy feature is the amazing rear garden which itself has to be viewed to be appreciated. The bright and tastefully decorated rooms include a welcoming hall, a lounge is open to a sitting room, there is a sun lounge, a study/fifth bedroom with an en-suite and a large family living dining kitchen with doors to the rear garden. Stairs from the hall lead to the first floor where the four bedrooms, one of which is en-suite, and the most attractive family bathroom will be found. Naturally the property is gas centrally heated and upvc double glazed. A pull down ladder from the landing gives access to the very useful loft space which is boarded for storage and has roof windows giving natural light. There is also ample off road parking to the front of the property. Heaton Road is extremely well located for all Heaton Moor has to offer including bars, restaurants, cafes, schools for all ages, sports facilities and the beautiful boutique Savoy cinema. For the commuter Heaton Chapel train station is just a 0.4 mile walk away and operates into both Stockport and Manchester centres. Council tax band C. Freehold. Must be viewed!

Virtual Tour Floorplan View Brochure View Epc Map Request Call Back Arrange Viewing
Why Choose Us?
The most experienced Estate Agents in Heaton Moor.
35 Years Successfully Selling Homes in The Heatons.
Expert local knowledge and guidance.
The Best located Estate Agency Office in The Heatons.
Thousands of Properties Sold &

Documents & Features

Brochures:
Floor Plans:
Floor Plan
EPC:
EPC
  • Bathrooms: 3
  • Bedrooms: 4
  • Garden: Rear Garden
  • Reception Rooms: 3

Estate Agent Contact Details

Agency: John Mellor

Contact: 01614424142

Company

Support

Legal

Estate Agents