(/)
View all photos (6)

2 Bed Flat Apartment in Hounslow TW4 To Rent

£1,750 pcm

Property Address: Tivoli Road, Hounslow, London, TW4 View on map

Property Details

  • Type: Residential / Flat Apartment
  • Listing Type: To Let

Description

Available to Rent Immediately!
arrow icon Ground Floor Split Level Apartment
arrow icon Spacious Reception Room
arrow icon Modern Fitted Kitchen
arrow icon Two Spacious Bedrooms
arrow icon Ample Storage
arrow icon Chic Family Bathroom/ WC
arrow icon Communal Garden
arrow icon Communal Parking Available
arrow icon Hounslow West Station 0.7 Miles
arrow icon Council Tax Band: C

Available to Rent Immediately!

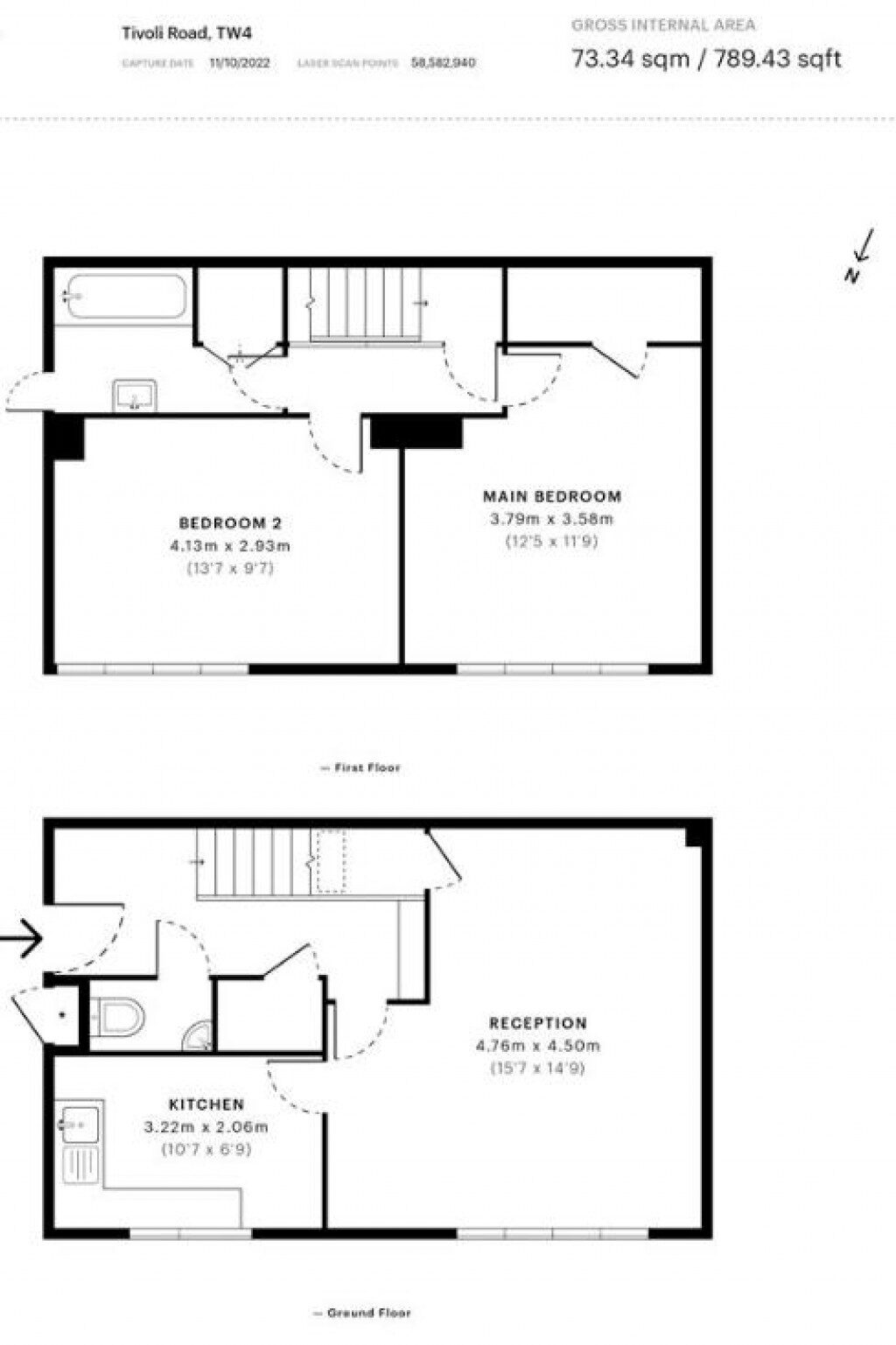
This ground floor level split apartment boasts a bright and spacious reception room, perfect for relaxing or entertaining, alongside a modern fitted kitchen equipped with contemporary units and appliances. There are two generously sized bedrooms, offering ample space for both living and storage needs. A stylish family bathroom / WC completes the interior, featuring chic finishes and a clean, modern design.

Additional benefits include ample storage throughout, access to a well-maintained communal garden, and communal parking facilities for residents.

Situated in a desirable part of Hounslow (TW4), the property benefits from excellent local amenities including shops, cafes, and schools. Hounslow West Underground Station (Piccadilly Line) is just 0.7 miles away, offering direct links to Heathrow Airport, Hammersmith, and Central London. The area also provides easy access to major road connections including the A4, M4, and A30

Documents & Features

Floor Plans:
Floor Plan
EPC:
EPC
  • Bathrooms: 1
  • Bedrooms: 2
  • Garden: Communal Garden
  • Parking: Parking
  • Reception Rooms: 1

Estate Agent Contact Details

Agency: DBK Estates

Contact: 02085714646

Company

Support

Legal

Estate Agents